Drancy (93700) CABINET MEDICAL EN PLEIN CENTRE VILLE

Réf : 3507 149 000 €

Vous cherchez un emplacement idéal pour votre cabinet médical en plein cœur de Drancy ? Ne cherchez pas plus loin, nous avons la solution parfaite pour vous !


Description du bien :

Localisation : Centre-ville de Drancy

Type de bien : Cabinet médical

Étage : Rez-de-chaussée

Année de rénovation : 2017

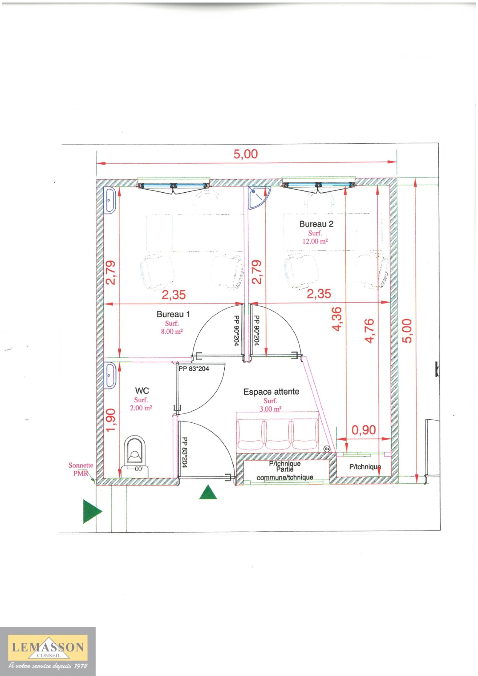
Configuration : Espace d'attente, deux salles ou bureaux, sanitaires

Stationnement : Emplacement de parking dédié

Stockage : Cave incluseCaractéristiques spéciales :


Une partie du cabinet (bureau 1) est actuellement louée à cinq infirmières libérales, assurant un revenu locatif mensuel de 1 000,00 €, charges comprises.Le deuxième bureau est disponible à la location, offrant un excellent potentiel locatif.
Atouts : Emplacement de choix en plein centre-ville, offrant une visibilité exceptionnelle et un accès facile pour vos patients.
Rénové en 2017, le cabinet médical présente un intérieur moderne et fonctionnel. La présence d'un espace d'attente, de bureaux et de sanitaires assure un environnement professionnel complet pour votre pratique.L'emplacement de stationnement dédié est un avantage considérable pour vos patients et le personnel.La cave fournit un espace supplémentaire pour le stockage de matériel médical ou de dossiers.Ce cabinet médical représente une opportunité exceptionnelle d'investissement, avec un revenu locatif stable provenant de l'emplacement du premier bureau. De plus, le deuxième bureau offre la possibilité d'augmenter vos revenus ou d'étendre votre propre pratique médicale.
Ne laissez pas passer cette chance unique d'installer votre cabinet médical dans un emplacement privilégié au centre-ville de Drancy. Pour plus d'informations ou pour planifier une visite, n'hésitez pas à nous contacter.


Les informations sur les risques auxquels ce bien est exposé sont disponibles sur le site Géorisques
TRAD_SIROCCO_Caracteristique Valeurs
Code postal 93700
Surface habitable (m²) 24,55 m²
Surface loi Carrez (m²) 24,55 m²
Nombre de pièces 2
TRAD_SIROCCO_Caracteristique Valeurs
Cuisine Sans
Mode de chauffage Electrique
Type de chauffage Convecteur
Format de chauffage Individuel
Interphone NON
Visiophone NON
Loggia NON
Terrasse NON
Cave OUI
Nombre de parking 1
Surface cave (m²) 3
Année de construction 1970
Quartier CENTRE
TRAD_SIROCCO_Caracteristique Valeurs
Copropriété OUI
Lot n° 2
nombre de lots 12
Quote Part annuelle des charges 624 €
plan de sauvegarde NON
TRAD_SIROCCO_Caracteristique Valeurs
Prix de vente 149 000 €
Les honoraires d'agence seront intégralement à la charge du vendeur  
Charges 54 €
Taxe foncière annuelle 795 €
DPE GES

Montant estimé des dépenses annuelles d'énergie de ce logement pour un usage standard est compris entre 350 € et 490 € . 2021 étant l'année de référence des prix de l'énergie utilisés pour établir cette estimation.

Nos outils

Imprimer
Rez de chaussée
WC 1.65 m²

entrée 3.4 m²

salle 8.75 m²

cabinet médical

salle 10.75 m²

cabinet médical

Ces biens peuvent aussi vous intéresser
Vendu
Le Blanc-Mesnil (93150)

IDEAL 1ERE ACQUISITION OU INVESTISSEMENT LOCATIF

Nous suivre sur
Prendre Contact
01 48 30 47 40 contact@lemasson-conseil.com 75 Bis Rue Anatole France
93700 Drancy